Daikin FDXM60F9 İnce Gizli Tavan Tipi Ünite
Ürün Açıklaması
- Soğutma Kapasitesi: 6,00 kW
- Isıtma Kapasitesi: 7,00 kW
- 40 Pa’ya kadar, orta seviyede cihaz dışı statik basınç, farklı uzunluklardaki esnek kanalların kullanılabilmesini sağlar
- R-32 ve R-410A için tek iç ünite serisi
- Kendi kendini temizleyen filtre seçeneği düzenli filtre temizliği sayesinde maksimum verimlilik, konfor ve güvenirlik sunar
- Çoklu bölge kiti bir iç ünitenin birden fazla sayıda, bağımsız olarak kontrol edilen klima bölgesine hizmet vermesine imkan tanır
- DC fan motoru sayesinde düşük enerji tüketimi
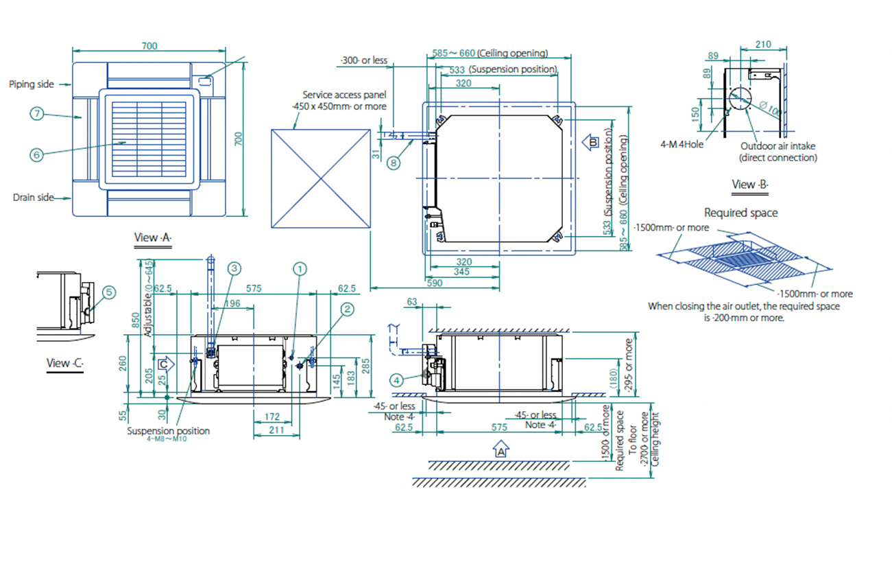
- Ünite tavana gömülü şekilde monte edildiğinden ünite görünmez: dışarıdan yalnızca emiş ve deşarj ızgaraları görülebilir
- Kompakt boyutları sayesinde yalnızca 240 mm’lik bir asma tavan boşluğuna kolayca monte edilebilir
Çevrimiçi kumanda (opsiyonel): nerede olursanız olun iç ünitenizi bir uygulama kullanarak, yerel ağ veya internet üzerinden kontrol edebilir ve enerji tüketiminizi takip edebilirsiniz
Teknik Özellikler
Verimlilik verileri |
|
FDXM + RXM |
25F9 + 25R |
35F9 + 35R |
50F9 + 50R |
60F9 + 60R |
|
Soğutma kapasitesi |
Min./Nom./Maks. |
|
kW |
1,30 /2,40 /3,00 |
1,40 /3,40 /3,80 |
1,70 /5,00 /5,30 |
1,70 /6,00 /6,50 |
Isıtma kapasitesi |
Min./Nom./Maks. |
|
kW |
1,30 /3,20 /4,50 |
1,40 /4,00 /5,00 |
1,70 /5,80 /6,00 |
1,70 /7,00 /7,10 |
Alan soğutma |
Enerji verimliliği sınıfı |
|
|
|
|
||
Kapasite |
Ptasarım |
kW |
2,40 |
3,40 |
5,00 |
6,00 |
|
SEER |
5,68 |
5,26 |
5,77 |
5,56 |
|||
ηs,c |
|
% |
– |
||||
Yıllık enerji tüketimi |
|
kWs/yıl |
148 |
226 |
303 |
378 |
|
Alan ısıtma (Ilıman iklim) |
Enerji verimliliği sınıfı |
|
|
||||
Kapasite |
Ptasarım |
kW |
2,60 |
2,90 |
4,00 |
4,60 |
|
SCOP/A |
4,24 |
3,88 |
3,93 |
3,80 |
|||
ηs,h |
|
% |
– |
||||
Yıllık enerji tüketimi |
|
kWs/yıl |
858 |
1.046 |
1.424 |
1.693 |
İç ünite |
|
|
FDXM |
25F9 |
35F9 |
50F9 |
60F9 |
Boyutlar |
Birim |
YükseklikxGenişlikxDerinlik |
mm |
200 x750 x620 |
200 x1.150 x620 |
||
Ağırlık |
Birim |
|
kg |
21 |
28 |
Fan |
Hava debisi |
Soğutma |
Düşük/Orta/Yüksek |
m³/dk |
7,3 /8,0 /8,7 |
13,3 /14,6 /15,8 |
13,5 /14,8 /16,0 |
Isıtma |
Düşük/Orta/Yüksek |
m³/dk |
7,3 / 8,0 / 8,7 |
13,3 / 14,6 / 15,8 |
13,5 / 14,8 / 16,0 |
||
Cihaz dışı statik basınç |
Nom. |
|
Pa |
30 |
40 |
||
Ses gücü seviyesi |
Soğutma |
|
|
dBA |
53,0 |
55,0 |
56,0 |
Isıtma |
|
|
dBA |
53,0 |
55,0 |
56,0 |
|
Ses basıncı seviyesi |
Soğutma |
Düşük/Yüksek |
dBA |
27,0 /35,0 |
30,0 /38,0 |
||
Isıtma |
Düşük/Yüksek |
dBA |
27,0 /35,0 |
30,0 /38,0 |
|||
Kontrol sistemleri |
Uzaktan kumanda |
– |
|||||
Kablolu kumanda |
BRC˜Hˇ˜K |
Dış ünite |
|
|
|
RXM |
25R |
35R |
50R |
60R |
||||
Boyutlar |
Birim |
YükseklikxGenişlikxDerinlik |
mm |
550 x765 x285 |
734 x870 x373 |
|||||||
Ağırlık |
Birim |
|
|
kg |
32 |
49,0 |
||||||
Ses gücü seviyesi |
Soğutma |
|
|
dBA |
58 |
61 |
62,0 |
63,0 |
||||
Isıtma |
|
|
dBA |
59 |
61 |
62,0 |
63,0 |
|||||
Ses basıncı seviyesi |
Soğutma |
Nom. |
|
dBA |
46 |
49 |
48,0 |
|||||
Isıtma |
Nom. |
|
dBA |
47 |
49 |
49,0 |
||||||
Çalışma sıcaklık aralığı |
Soğutma |
Ortam sıcaklığı |
Min.~Maks. |
°C KT |
-10~50 |
|||||||
|
Isıtma |
Ortam sıcaklığı |
Min.~Maks. |
°C YT |
-20~24 |
|||||||
Soğutucu akışkan |
Tipi |
|
|
|
R-32 |
|
||||||
|
GWP |
|
|
675 |
|
675,0 |
||||||
|
Şarj |
|
kg/TCO2Eq |
0,76 /0,52 |
|
1,15 /0,780 |
||||||
Boru bağlantıları |
Sıvı |
DÇ |
mm |
|
6,35 |
|
Teknik Çizimler
