Daikin FFA25A9 Küçük Ticari Kaset Tipi Klima
Daikin FFA25A9 Küçük Ticari Kaset Tipi Klima

Daikin FFA35A9 Küçük Ticari Kaset Tipi Klima

    Ürün Açıklaması

    • Soğutma Kapasitesi: 3,40 kW
    • Isıtma Kapasitesi: 4,20 kW
    • Hareket sensörü (opsiyonel), odada kimse tespit edilmediğinde ayar noktasını standart 1°C ile ayarlar, ayrıca ayar noktasının 2, 3 veya 4°C (opsiyonel) ile ayarlanması da mümkündür. Ayrıca soğuk hava etkisi yaratmamak için otomatik olarak havanın doğrudan insan vücuduna üflenmesini engeller
    • Hareket sensörü (opsiyonel), odada kimse tespit edilmediğinde ayar noktasını standart 1°C ile ayarlar, ayrıca ayar noktasının 2, 3 veya 4°C (opsiyonel) ile ayarlanması da mümkündür.
    • DIII bağlantısı için opsiyonel adaptöre gerek yoktur; ünitenizi doğrudan geniş bina yönetimi sistemine bağlayabilirsiniz
    • Piyasadaki rakipsiz tasarım: tavana tam olarak düz şekilde entegre olur ve mimari tavan modüllerine silme şekilde uyar
    • Simgeleşen tasarım ve mühendislik harikasının beyaz veya gümüş ve beyaz karışımı şık yüzeyle inanılmaz uyumu

    Daikin FFA35A9 Küçük Ticari Kompakt Kaset Tipi Klima

    Teknik Özellikler

    Verimlilik verileri

     

    FFA + RXM

    25A9 + 25R9

    35A9 + 35R9

    50A9 + 50R

    60A9 + 60R

    Soğutma kapasitesi Nom.

     

    kW

    2,50

    3,40

    5,00

    5,70

    Isıtma kapasitesi       Nom.

     

    kW

    3,20

    4,20

    5,80

    7,00

    Alan soğutma

    Enerji verimliliği sınıfı

    A++

    A+

    Kapasite

    Ptasarım

    kW

    2,50

    3,40

    5,00

    5,70

    SEER

    6,17

    6,38

    5,98

    5,76

    Yıllık enerji tüketimi

     

    kWs/yıl

    142

    186

    293

    346

    Alan ısıtma (Ilıman iklim)

    Enerji verimliliği sınıfı

    A+

    A

    A+

    Kapasite

    Ptasarım

    kW

    2,31

    3,10

    3,84

    3,96

    SCOP/A

    4,24

    4,10

    3,90

    4,04

    Yıllık enerji tüketimi

     

    kWs/yıl

    762

    1.058

    1.378

    1.373

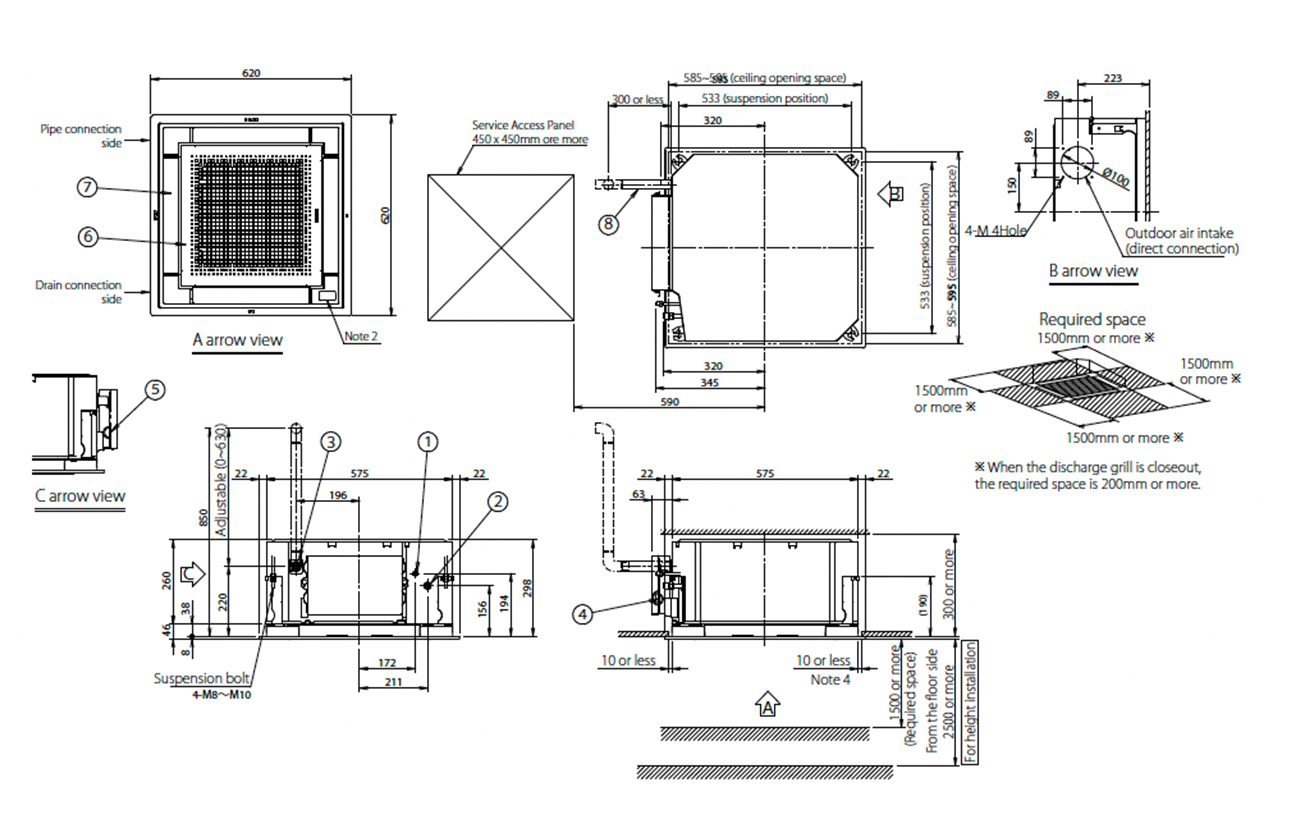
    Teknik Çizimler

    Daikin FFA35A9 Küçük Ticari Kaset Tipi Klima

    Daikin FFA35A9 Küçük Ticari Kaset Tipi Klima Videoları

    Diğer Daikin Ürünleri
    Daikin Klimalar