Daikin FXAQ63 – Duvar Tipi İç Ünite VRV
Ürün Açıklaması
- Soğutma Kapasitesi: 7,1 kW
- Isıtma Kapasitesi: 8,0 kW
Asma tavanı olmayan veya kullanılabilir zemin alanı kısıtlı olan odalar için tasarlandı!
Şık düz ön paneli iç dekora sorunsuz uyar ve temizlemesi çok kolaydır
Yeni projelere ve yenileme projelerine kolayca monte edilebilir
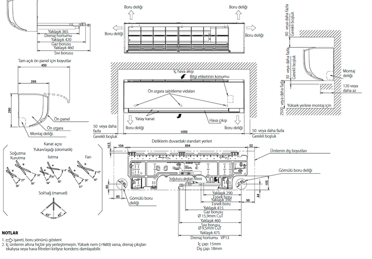
Hava, uzaktan kumandadan programlanabilen 5 farklı üfleme açısı sayesinde yukarıya ve aşağıya doğru konforlu şekilde üflenir
Bakım işlemleri ünitenin ön bölümünden kolayca gerçekleştirilebilir
Teknik Özellikler
İç ünite FXAQ 15A |
20A |
25A |
32A |
40A |
50A |
63A |
||
Soğutma kapasitesi Toplam Yüksek fan devrinde kW kapasite |
1,7 |
2,2 |
2,8 |
3,6 |
4,5 |
5,6 |
7,1 |
|
Isıtma kapasitesi Toplam Yüksek fan devrinde kW kapasite |
1,9 |
2,5 |
3,2 |
4,0 |
5,0 |
6,3 |
8,0 |
|
Çekilen güç – 50 Hz |
Soğutma Yüksek fan devrinde kW |
0,02 |
0,03 |
0,02 |
0,03 |
0,05 |
||
Isıtma Yüksek fan devrinde kW |
0,03 |
0,04 |
0,02 |
0,04 |
0,06 |
|||
Boyutlar Birim YükseklikxGenişlikxDerinlik mm |
290x795x266 |
290×1.050×269 |
||||||
Ağırlık Birim kg |
12 |
15 |
||||||
Fan Hava akış Soğutma Yüksek fan devrinde m³/dak hızı – 50 Hz / Düşük fan devrinde |
8,4 / 7,0 |
9,1 / 7,0 |
9,4 / 7,0 |
9,8 / 7,0 |
12,2 / 9,7 |
14,4 / 11,5 |
18,3 / 13,5 |
|
Hava filtresi Tipi |
Yıkanabilir reçine ağ |
|||||||
Ses gücü seviyesi Soğutma Yüksek fan devrinde dBA |
51,0 |
52,0 |
53,0 |
55,0 |
58,0 |
63,0 |
||
Ses basıncı seviyesi |
Soğutma Yüksek fan devrinde / Düşük dBA fan devrinde |
32,0 / 28,5 |
33,0 / 28,5 |
35,0 / 28,5 |
37,5 / 28,5 |
37,0 / 33,5 |
41,0 / 35,5 |
46,5 / 38,5 |
Isıtma Yüksek fan devrinde / Düşük dBA fan devrinde |
33,0 / 28,5 |
34,0 / 28,5 |
36,0 / 28,5 |
38,5 / 28,5 |
38,0 / 33,5 |
42,0 / 35,5 |
47,0 / 38,5 |
|
Soğutucu akışkan Tipi/GWP |
R-410A/2.087,5 |
|||||||
Boru bağlantıları |
Sıvı DÇ mm |
6,35 |
9,52 |
|||||
Gaz DÇ mm |
12,7 |
15,9 |
||||||
Drenaj |
VP13 (İÇ 15/DÇ 18) |
|||||||
Güç beslemesi Faz/Frekans/Gerilim Hz/V |
1~/50/220-240 |
|||||||
Akım – 50 Hz Maksimum sigorta amperi (MFA) A |
16 |
|||||||
Kontrol sistemleri |
Uzaktan kumanda |
BRC7EA628 / BRC7EA629 |
||||||
Kablolu kumanda |
BRC1H52W/S/K / BRC1E53A / BRC1E53B / BRC1E53C / BRC1D52 |
Teknik Çizimler
