Daikin FXHQ63 – Tavan Tipi İç Ünite VRV
Ürün Açıklaması
- Soğutma Kapasitesi: 7,1 kW
- Isıtma Kapasitesi: 8,0 kW
Coanda etkisi sayesinde geniş odalarda konforlu hava üfleme için idealdir: 100° üfleme açısına kadarʯ Tavan yüksekliği 3,8m'ye kadar çıkan odalar dahi kapasite kaybı olmaksızın çok kolay bir şekilde ısıtılabilir veya soğutulabilir!
Yeni projelere ve yenileme projelerine kolayca monte edilebilir
Yalnızca 30mm yan servis alanına ihtiyaç duyduğundan köşelere ve dar alanlara kolayca monte edilebilir
Aynı sisteme taze hava girişi entegre edilmiş ve böylece ilave bir havalandırma ihtiyacı ortadan kaldırılarak montaj maliyeti düşürülmüştür
Şık ünite her türlü iç dekora sorunsuz uyum sağlar. Ünite çalışmadığında ve görünür hava giriş paneli bulunmadığında kanatlar tamamen kapanır
Teknik Özellikler
İç ünite FXHQ 32A |
63A |
100A |
|||
Soğutma kapasitesi Toplam kapasite Yüksek fan devrinde kW |
3,6 |
7,1 |
11,2 |
||
Isıtma kapasitesi Toplam kapasite Yüksek fan devrinde kW |
4,0 |
8,0 |
12,5 |
||
Çekilen güç – 50 Hz |
Soğutma Yüksek fan devrinde kW |
0,107 |
0,111 |
0,237 |
|
Isıtma Yüksek fan devrinde kW |
0,107 |
0,111 |
0,237 |
||
Boyutlar Birim YükseklikxGenişlikxDerinlik mm |
235x960x690 |
235×1.270×690 |
235×1.590×690 |
||
Ağırlık Birim kg |
24 |
33 |
39 |
||
Gövde Malzeme |
Reçine |
||||
Fan Hava akış hızı – 50 Hz |
Soğutma Yüksek fan devrinde m³/dak / Orta fan devrinde / Düşük fan devrinde |
14,0 / 12,0 / 10,0 |
20,0 / 17,0 / 14,0 |
29,5 / 24,0 / 19,0 |
|
Isıtma Yüksek fan devrinde m³/dak / Orta fan devrinde / Düşük fan devrinde |
14,0 / 12,0 / 10,0 |
20,0 / 17,0 / 14,0 |
29,5 / 24,0 / 19,0 |
||
Hava filtresi Tipi |
Kalıp direncine sahip reçine ağ |
||||
Ses gücü seviyesi Soğutma Yüksek fan devrinde / Orta fan dBA devrinde / Düşük fan devrinde |
54 / 52 / 49 |
55 / 53 / 52 |
62 / 55 / 52 |
||
Ses basıncı seviyesi |
Soğutma Yüksek fan devrinde / Orta fan dBA devrinde / Düşük fan devrinde |
36,0 / 34,0 / 31,0 |
37,0 / 35,0 / 34,0 |
44,0 / 37,0 / 34,0 |
|
Isıtma Yüksek fan devrinde / Orta fan dBA devrinde / Düşük fan devrinde |
36,0 / 34,0 / 31,0 |
37,0 / 35,0 / 34,0 |
44,0 / 37,0 / 34,0 |
||
Soğutucu akışkan Tipi/GWP |
R-410A/2.087,5 |
||||
Boru bağlantıları |
Sıvı DÇ mm |
6,35 |
9,52 |
||
Gaz DÇ mm |
12,7 |
15,9 |
|||
Drenaj |
VP20 (İÇ 20/DÇ 26) |
||||
Güç beslemesi Faz/Frekans/Gerilim Hz/V |
1~/50/220-240 |
||||
Akım – 50 Hz Maksimum sigorta amperi (MFA) A |
16 |
||||
Kontrol sistemleri |
Uzaktan kumanda |
BRC7G53 |
|||
Kablolu kumanda |
BRC1H52W/S/K / BRC1E53A / BRC1E53B / BRC1E53C / BRC1D52 |
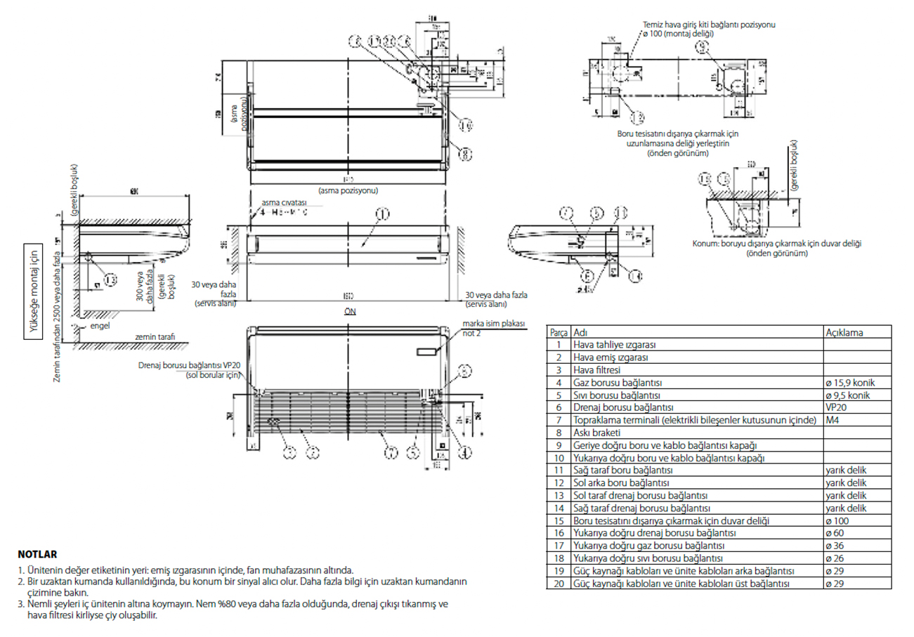
Teknik Çizimler
