Daikin FXKQ40 – Tek Yöne Üflemeli Kaset Tipi İç Ünite VRV
Ürün Açıklaması
- Soğutma Kapasitesi: 4,5 kW
- Isıtma Kapasitesi: 5,0 kW
Kompakt boyutlar, dar bir tavan boşluğuna kolay bir şekilde monte edilebilir (sadece 220mm tavan boşluğu gereklidir, panel aralayıcı ile 195, aksesuar olarak mevcuttur)
Aşağı hava deşarjı veya önden hava deşarjı (opsiyonel ızgarayla) veya ikisinin bir kombinasyonu ile optimum hava akımı koşulları oluşturulmaktadır
Ön panel sökülerek bakım işlemleri gerçekleştirilebilir
330mm basınç yüksekliğine sahip standart drenaj pompası esnekliği yükseltirken, montaj süresini kısaltır
Teknik Özellikler
İç ünite FXKQ 25MA |
32MA |
40MA |
63MA |
||
Soğutma kapasitesi Toplam kapasite Yüksek fan devrinde kW |
2,8 |
3,6 |
4,5 |
7,10 |
|
Isıtma kapasitesi Toplam kapasite Yüksek fan devrinde kW |
3,2 |
4,0 |
5,0 |
8,00 |
|
Çekilen güç – 50 Hz |
Soğutma Yüksek fan devrinde kW |
0,066 |
0,076 |
0,105 |
|
Isıtma Yüksek fan devrinde kW |
0,046 |
0,056 |
0,085 |
||
Boyutlar Birim YükseklikxGenişlikxDerinlik mm |
215×1.110×710 |
215×1.310×710 |
|||
Ağırlık Birim kg |
31 |
34 |
|||
Gövde Malzeme |
Galvanizli çelik levha |
||||
Dekoratif panel |
Model |
BYK45FJW1 |
BYK71FJW1 |
||
Renk |
Beyaz |
||||
Boyutlar YükseklikxGenişlikxDerinlik mm |
70×1.240×800 |
70×1.440×800 |
|||
Ağırlık kg |
8,5 |
9,5 |
|||
Fan Hava akış Soğutma Yüksek fan devrinde m³/dak hızı – 50 Hz / Düşük fan devrinde |
11 / 9 |
13 / 10 |
18 / 15 |
||
Hava filtresi Tipi |
Kalıp direncine sahip reçine ağ |
||||
Ses gücü seviyesi Soğutma Yüksek fan devrinde / Düşük dBA fan devrinde |
54 / 49 |
56 / 50 |
58 / 53 |
||
Ses basıncı seviyesi Soğutma Yüksek fan devrinde / Düşük dBA fan devrinde |
38,0 / 33,0 |
40,0 / 34,0 |
42,0 / 37,0 |
||
Soğutucu akışkan Tipi/GWP |
R-410A/2.087,5 |
||||
Boru bağlantıları |
Sıvı DÇ mm |
6,35 |
9,52 |
||
Gaz DÇ mm |
12,7 |
15,9 |
|||
Drenaj |
VP25 (DÇ 32 / İÇ 25) |
||||
Güç beslemesi Faz/Frekans/Gerilim Hz/V |
1~/50/60/220-240/220 |
||||
Akım – 50 Hz Maksimum sigorta amperi (MFA) A |
15 |
||||
Kontrol sistemleri |
Uzaktan kumanda |
BRC4C61 |
|||
Kablolu kumanda |
BRC1H52W/S/K / BRC1E53A / BRC1E53B / BRC1E53C / BRC1D52 |
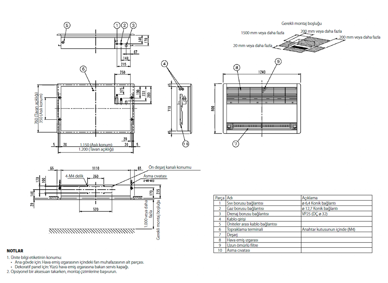
Teknik Çizimler
