Daikin FXUQ125 – Dört Yöne Üflemeli Tavana Asılı Tip VRV
Ürün Açıklaması
- Soğutma Kapasitesi: 14,0 kW
- Isıtma Kapasitesi: 16,0 kW
Tavan yüksekliği 3,5m'ye kadar çıkan odalar dahi kapasite kaybı olmaksızın çok kolay bir şekilde ısıtılabilir veya soğutulabilir!
Yeni projelere ve yenileme projelerine kolayca monte edilebilir
Bağımsız kanat kontrolü: ünitenin yerinin değiştirilmesine gerek
kalmaksızın her oda planına sorunsuz uyum sağlayacak kadar esnektir!
Şık ünite her türlü iç dekora sorunsuz uyum sağlar. Ünite çalışmadığında ve görünür hava giriş paneli bulunmadığında kanatlar tamamen kapanır
Hava akışının gerekli yüke göre otomatik kontrolü sayesinde optimum konfor garantisi
0 ile 60° arasında 5 farklı üfleme açısı uzaktan kumanda ile programlanabilir
Teknik Özellikler
İç ünite FXUQ 71A |
100A |
|||
Soğutma kapasitesi Toplam kapasite Yüksek fan devrinde kW |
8,0 |
11,2 |
||
Isıtma kapasitesi Toplam kapasite Yüksek fan devrinde kW |
9,0 |
12,5 |
||
Çekilen güç – 50 Hz |
Soğutma Yüksek fan devrinde kW |
0,090 |
0,200 |
|
Isıtma Yüksek fan devrinde kW |
0,073 |
0,179 |
||
Boyutlar Birim YükseklikxGenişlikxDerinlik mm |
198x950x950 |
|||
Ağırlık Birim kg |
26 |
27 |
||
Gövde Malzeme |
Reçine |
|||
Fan Hava akış hızı – 50 Hz |
Soğutma Yüksek fan devrinde m³/dak / Orta fan devrinde / Düşük fan devrinde |
22,5 / 19,5 / 16,0 |
31,0 / 26,0 / 21,0 |
|
Isıtma Yüksek fan devrinde m³/dak / Orta fan devrinde / Düşük fan devrinde |
22,5 / 19,5 / 16,0 |
31,0 / 26,0 / 21,0 |
||
Hava filtresi Tipi |
Kalıp direncine sahip reçine ağ |
|||
Ses gücü seviyesi Soğutma Yüksek fan devrinde / Orta fan dBA devrinde / Düşük fan devrinde |
58 / 56 / 54 |
65 / 62 / 58 |
||
Ses basıncı seviyesi |
Soğutma Yüksek fan devrinde / Orta fan dBA devrinde / Düşük fan devrinde |
40,0 / 38,0 / 36,0 |
47,0 / 44,0 / 40,0 |
|
Isıtma Yüksek fan devrinde / Orta fan dBA devrinde / Düşük fan devrinde |
40,0 / 38,0 / 36,0 |
47,0 / 44,0 / 40,0 |
||
Soğutucu akışkan Tipi/GWP |
R-410A/2.087,5 |
|||
Boru bağlantıları |
Sıvı DÇ mm |
9,52 |
||
Gaz DÇ mm |
15,9 |
|||
Drenaj |
İÇ 20/DÇ 26 |
|||
Güç beslemesi Faz/Frekans/Gerilim Hz/V |
1~/50/60/220-240/220-230 |
|||
Akım – 50 Hz Maksimum sigorta amperi (MFA) A |
16 |
|||
Kontrol sistemleri |
Uzaktan kumanda |
BRC7C58 |
||
Kablolu kumanda |
BRC1H52W/S/K / BRC1E53A / BRC1E53B / BRC1E53C / BRC1D52 |
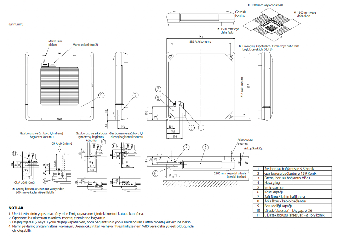
Teknik Çizimler
