Daikin VKM50GBM - DX Bataryalı + Nemlendiricili Taze Hava Ünitesi
Daikin VKM50GBM - DX Bataryalı + Nemlendiricili Taze Hava Ünitesi

Daikin VKM100GBM – DX Bataryalı + Nemlendiricili Taze Hava Ünitesi

    Ürün Açıklaması

    Daikin tarafından temin edilen hem VAM hem de elektrikli ısıtıcılar sayesinde eksiksiz taze hava çözümü
    Isıtılan dış ortam havası sayesinde düşük dış ortam sıcaklıklarında daha yüksek konfor
    Entegre elektrikli ısıtıcı kavramı (ilave aksesuarlara gerek yoktur)
    Standart çift akış ve sıcaklık sensörü
    Ayarlanabilir ayar noktalı esnek yapılandırma
    2 kesiciyle birlikte artan emniyet: manüel ve otomatik

    Teknik Özellikler

    Havalandırma

    VKM-GB/VKM-GBM

    50GB

    80GB

    100GB

    50GBM

    80GBM

    100GBM

    Çekilen güç – 50 Hz

    Isı dönüştürme      Nom.          Ultra yüksek/         kW modu                                    Yüksek/Düşük

    0,270/0,230/0,170

    0,330/0,280/0,192

    0,410/0,365/0,230

    0,270/0,230/0,170

    0,330/0,280/0,192

    0,410/0,365/0,230

    Bypass modu         Nom.          Ultra yüksek/         kW

    Yüksek/Düşük

    0,270/0,230/0,140

    0,330/0,280/0,192

    0,410/0,365/0,230

    0,270/0,230/0,170

    0,330/0,280/0,192

    0,410/0,365/0,230

    Temiz klima yükü

    Soğutma                                                       kW

    4,71 / 1,91 / 3,5

    7,46 / 2,96 / 5,6

    9,12 / 3,52 / 7,0

    4,71 / 1,91 / 3,5

    7,46 / 2,96 / 5,6

    9,12 / 3,52 / 7,0

    Isıtma                                                           kW

    5,58 / 2,38 / 3,5

    8,79 / 3,79 / 5,6

    10,69 / 4,39 / 7,0

    5,58 / 2,38 / 3,5

    8,79 / 3,79 / 5,6

    10,69 / 4,39 / 7,0

    Sıcaklık transfer verimliliği – 50 Hz

    Ultra yüksek/Yüksek/Düşük                               %

     

    76/76/77,5

     

    78/78/79

     

    74/74/76,5

     

    76/76/77,5

     

    78/78/79

     

    74/74/76,5

    Entalpi transfer verimliliği – 50 Hz

    Soğutma               Ultra yüksek/Yüksek/Düşük          %

    64/64/67

    66/66/68

    62/62/66

    64/64/67

    66/66/68

    62/62/66

    Isıtma                  Ultra yüksek/Yüksek/Düşük          %

    67/67/69

    71/71/73

    65/65/69

    67/67/69

    71/71/73

    65/65/69

    Çalışma modu

    Isı eşanjörü modu / Bypass modu / Tazeleme modu

    Isı dönüştürme sistemi

    Düz – çapraz akışlı toplam ısı (hissedilebilir + gizli ısı) değişimi

    Isı dönüştürme elemanı

    Özel olarak işlenen alev almaz kağıt

    Nemlendirici

    Sistem

    Doğal buharlaştırıcı tip

    Boyutlar

    Birim                   YükseklikxGenişlikxDerinlik       mm

    387×1.764×832

    387×1.764×1.214

    387×1.764×832

    387×1.764×1.214

    Ağırlık

    Birim                                                            kg

    94

    110

    112

    100

    119

    123

    Gövde

    Malzeme

    Galvanizli çelik levha

    Fan-Hava akış hızı

    – 50 Hz

    Isı dönüştürme modu     Ultra yüksek/Yüksek/Düşük m³/sa

    500/500/440

    750/750/640

    950/950/820

    500/500/440

    750/750/640

    950/950/820

    Bypass modu         Ultra yüksek/Yüksek/Düşük m³/sa

    500/500/440

    750/750/640

    950/950/820

    500/500/440

    750/750/640

    950/950/820

    Fan-Cihaz dışı statik basınç – 50 Hz

    Ultra yüksek/Yüksek/Düşük                                Pa

    210/170/140

    210/160/110

    150/100/70

    200/150/120

    205/155/105

    110/70/60

    Hava filtresi

    Tipi

    Çok yönlü fiber kumaş

    Ses basıncı seviyesi

    – 50 Hz

    Isı dönüştürme modu     Ultra yüksek/Yüksek/Düşük       dBA

    39/37/35

    41,5/39/37

    41/39/36,5

    38/36/34

    40/37,5/35,5

    40/38/35,5

    Bypass modu         Ultra yüksek/Yüksek/Düşük       dBA

    40/38/35,5

    41,5/39/37

    41/39/36,5

    39/36/34,5

    41/38/36

    41/39/35,5

    Çalışma sıcaklık aralığı

    Çevre ünite                                                °C KT

    0°C~40°C KT, %80 RH ve altı

    Besleme havası                                           °C KT

    -15°C~40°C KT, %80 RH ve altı

    Dönüş havası                                              °C KT

    0°C~40°C KT, %80 RH ve altı

    Coil sıcaklığında        Soğutma/Maks./Isıtma/Min.        °C KT

    -15/43

    -15/43

    Soğutucu akışkan

    Kumanda

    Elektronik genleşme vanası

    Tipi

    R-410A

    GWP

    2.087,5

    Bağlantı kanalı çapı

    mm

    200

    250

    200

    250

    Boru bağlantıları

    Sıvı                      DÇ                                   mm

    6,35

    Gaz                     DÇ                                   mm

    12,7

    Su temini                                                    mm

    6,4

    Drenaj

    PT3/4 dış diş

    Güç beslemesi

    Faz/Frekans/Gerilim                                      Hz/V

    1~/50/220-240

    Akım

    Maksimum sigorta amperi (MFA)                          A

    15

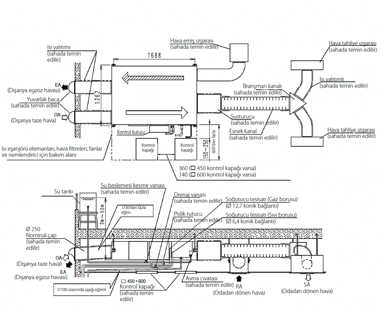
    Teknik Çizimler

    Daikin VKM100GBM – DX Bataryalı + Nemlendiricili Taze Hava Ünitesi

    Daikin VKM100GBM – DX Bataryalı + Nemlendiricili Taze Hava Ünitesi Videoları

    Diğer Daikin Ürünleri
    Daikin Klimalar