Daikin FHA100A Tavan Tipi Ticari Klima
Ürün Açıklaması
- Soğutma Kapasitesi: 9,50 kW
- Isıtma Kapasitesi: 10,8 kW
Sky Air® inverter, hafif ticari uygulamalarda kullanılmak üzere tasarlanmıştır
Asma tavansız mağaza, restoran veya ofisler için ideal çözümdür.
Enerji verimli üniteler: A enerji sınıfına kadar
Yükseltilmiş Sezonsal verimlilik - SEER: 4.53'ye kadar (PrEN14825 - 2010 sürümünü isteyin)
Tüm sezonlar için optimize edilmiş sezonsal verimlilik.
Yeni ve mevcut binalara monte edilebilir
Asma tavansız mağaza, restoran veya ofisler için ideal çözümdür
Ünite, yalnızca 30 mm yanal servis alanı gerektirdiğinden köşelere ve sıkışık alanlara kolayca monte edilebilir
Sezonsal verimlilik bir klimanın tüm bir soğutma veya ısıtma sezonu boyunca ne kadar verimli çalıştığının bir göstergesidir.
Sky Air® inverter, hafif ticari uygulamalarda kullanılmak üzere tasarlanmıştır ve mağazalarda, restoranlarda ve ofislerde daha uygun bir çalışma ortamı ve enerji tüketiminin büyük ölçüde azaltılmasını sağlar
Daikin dış üniteleri düzgün ve güçlü olup; tavan veya terasa kolay bir şekilde monte edilebilir yada doğrudan dış duvara yerleştirilebilir.
Isı eşanjöründeki korozyon önleyici özel akril ön kaplamalı kanat zorlu hava koşullarına karşı yüksek direnç sağlar.
Çiftli uygulama için dış üniteler.
Teknik Özellikler
Verimlilik verileri |
|
FHA + RZASG |
71A9 + 71MV1 |
100A + 100MV1 |
125A + 125MV1 |
140A + 140MV1 |
100A + 100MY1 |
125A + 125MY1 |
140A + 140MY1 |
|
Soğutma kapasitesi Nom. |
|
kW |
6,80 |
9,50 |
12,1 |
13,4 |
9,50 |
12,1 |
13,4 |
|
Isıtma kapasitesi Nom. |
|
kW |
7,50 |
10,8 |
13,5 |
15,5 |
10,8 |
13,5 |
15,5 |
|
Alan soğutma |
Enerji verimliliği sınıfı |
A+ |
– |
A+ |
– |
|||||
Kapasite |
Ptasarım |
kW |
6,80 |
9,50 |
12,1 |
13,4 |
9,50 |
12,1 |
13,4 |
|
SEER |
5,95 |
5,83 |
5,88 |
5,83 |
5,88 |
|||||
ηs,c % |
– |
230 |
232 |
– |
230 |
232 |
||||
Yıllık enerji tüketimi |
|
kWs/yıl |
400 |
570 |
1.246 |
1.368 |
570 |
1.246 |
1.368 |
|
Alan ısıtma (Ilıman iklim) |
Enerji verimliliği sınıfı |
A |
– |
A |
– |
|||||
Kapasite |
Ptasarım |
kW |
4,50 |
6,00 |
7,80 |
6,00 |
7,80 |
|||
SCOP/A |
3,90 |
3,91 |
3,83 |
3,81 |
3,91 |
3,83 |
3,81 |
|||
ηs,h % |
– |
150 |
149 |
– |
150 |
149 |
||||
Yıllık enerji tüketimi |
|
kWs/yıl |
1.616 |
2.148 |
2.193 |
2.866 |
2.148 |
2.193 |
2.866 |
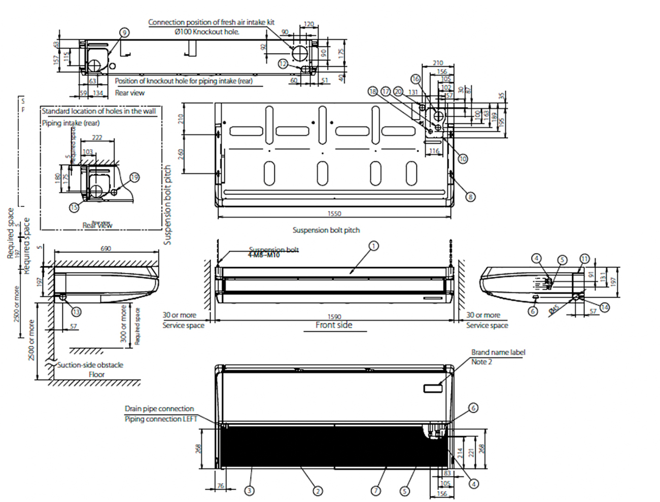
Teknik Çizimler
