Daikin FXAQ - Duvar Tipi İç Ünite VRV
Daikin FXAQ - Duvar Tipi İç Ünite VRV

Daikin FXAQ15 – Duvar Tipi İç Ünite VRV

    Ürün Açıklaması

    • Soğutma Kapasitesi: 1,7 kW
    • Isıtma Kapasitesi: 1,9 kW

    Asma tavanı olmayan veya kullanılabilir zemin alanı kısıtlı olan odalar için tasarlandı!
    Şık düz ön paneli iç dekora sorunsuz uyar ve temizlemesi çok kolaydır
    Yeni projelere ve yenileme projelerine kolayca monte edilebilir
    Hava, uzaktan kumandadan programlanabilen 5 farklı üfleme açısı sayesinde yukarıya ve aşağıya doğru konforlu şekilde üflenir
    Bakım işlemleri ünitenin ön bölümünden kolayca gerçekleştirilebilir

    Teknik Özellikler

    İç ünite                                                                                FXAQ         15A

    20A

    25A

    32A

    40A

    50A

    63A

    Soğutma kapasitesi  Toplam       Yüksek fan devrinde                    kW

    kapasite

    1,7

    2,2

    2,8

    3,6

    4,5

    5,6

    7,1

    Isıtma kapasitesi       Toplam      Yüksek fan devrinde                    kW

    kapasite

    1,9

    2,5

    3,2

    4,0

    5,0

    6,3

    8,0

    Çekilen güç – 50 Hz

    Soğutma    Yüksek fan devrinde                    kW

    0,02

    0,03

    0,02

    0,03

    0,05

    Isıtma        Yüksek fan devrinde                     kW

    0,03

    0,04

    0,02

    0,04

    0,06

    Boyutlar                  Birim         YükseklikxGenişlikxDerinlik          mm

    290x795x266

    290×1.050×269

    Ağırlık                     Birim                                                           kg

    12

    15

    Fan                         Hava akış Soğutma Yüksek fan devrinde m³/dak

    hızı – 50 Hz                  / Düşük fan devrinde

    8,4 / 7,0

    9,1 / 7,0

    9,4 / 7,0

    9,8 / 7,0

    12,2 / 9,7

    14,4 / 11,5

    18,3 / 13,5

    Hava filtresi             Tipi

    Yıkanabilir reçine ağ

    Ses gücü seviyesi     Soğutma    Yüksek fan devrinde                    dBA

    51,0

    52,0

    53,0

    55,0

    58,0

    63,0

    Ses basıncı seviyesi

    Soğutma   Yüksek fan devrinde / Düşük       dBA

    fan devrinde

    32,0 / 28,5

    33,0 / 28,5

    35,0 / 28,5

    37,5 / 28,5

    37,0 / 33,5

    41,0 / 35,5

    46,5 / 38,5

    Isıtma        Yüksek fan devrinde / Düşük       dBA

    fan devrinde

    33,0 / 28,5

    34,0 / 28,5

    36,0 / 28,5

    38,5 / 28,5

    38,0 / 33,5

    42,0 / 35,5

    47,0 / 38,5

    Soğutucu akışkan Tipi/GWP

    R-410A/2.087,5

    Boru bağlantıları

    Sıvı            DÇ                                            mm

    6,35

    9,52

    Gaz           DÇ                                            mm

    12,7

    15,9

    Drenaj

    VP13 (İÇ 15/DÇ 18)

    Güç beslemesi         Faz/Frekans/Gerilim                                   Hz/V

    1~/50/220-240

    Akım – 50 Hz            Maksimum sigorta amperi (MFA)                      A

    16

    Kontrol sistemleri

    Uzaktan kumanda

    BRC7EA628 / BRC7EA629

    Kablolu kumanda

    BRC1H52W/S/K / BRC1E53A / BRC1E53B / BRC1E53C / BRC1D52

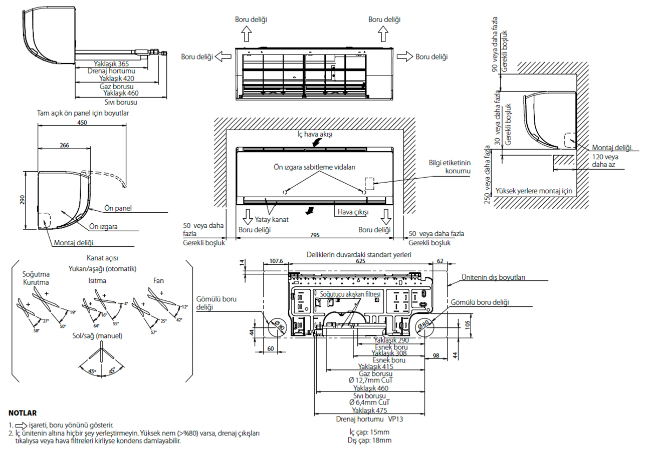
    Teknik Çizimler

    Daikin FXAQ15 – Duvar Tipi İç Ünite VRV

    Daikin FXAQ15 – Duvar Tipi İç Ünite VRV Videoları

    Diğer Daikin Ürünleri
    Daikin Klimalar