Daikin FHA35A9 Tavan Tipi Küçük Ticari Klima
Ürün Açıklaması
- Soğutma Kapasitesi: 3,40 kW
- Isıtma Kapasitesi: 4,00 kW
- Çalışmıyorken kanatları tamamen kapalı konumda olduğundan, şık iç ünite her türlü iç dekora sorunsuz uyum sağlar
- Yeni ve mevcut binalara monte edilebilir
- Coanda etkisi sayesinde daha geniş açıda hava atışı: 100°’ye kadar
- 3,8 m yüksekliğindeki tavanlar için kapasite kaybı olmaksızın hava dağılımı sağlar
- DIII bağlantısı için opsiyonel adaptör gerekli değildir, ünitenizi daha geniş bina yönetimi sistemine bağlayın
- Ünite, yalnızca 30 mm yan servis alanı gerektiğinden köşelere ve dar alanlara kolayca monte edilebilir
- DC fan motoru ve drenaj pompası sayesinde düşük enerji tüketimi
Teknik Özellikler
Verimlilik verileri |
|
FHA + RXM |
35A9 + 35R9 |
50A9 + 50R |
60A9 + 60R |
|
Soğutma kapasitesi Nom. |
|
kW |
3,40 |
5,00 |
5,70 |
|
Isıtma kapasitesi Nom. |
|
kW |
4,00 |
6,00 |
7,20 |
|
Alan soğutma |
Enerji verimliliği sınıfı |
A++ |
A+ |
|||
Kapasite |
Ptasarım |
kW |
3,40 |
5,00 |
5,70 |
|
SEER |
6,24 |
5,92 |
6,08 |
|||
Yıllık enerji tüketimi |
|
kWs/yıl |
191 |
295 |
328 |
|
Alan ısıtma (Ilıman iklim) |
Enerji verimliliği sınıfı |
A+ |
A |
|||
Kapasite |
Ptasarım |
kW |
3,10 |
4,35 |
4,71 |
|
SCOP/A |
4,43 |
3,86 |
3,87 |
|||
Yıllık enerji tüketimi |
|
kWs/yıl |
979 |
1.577 |
1.704 |
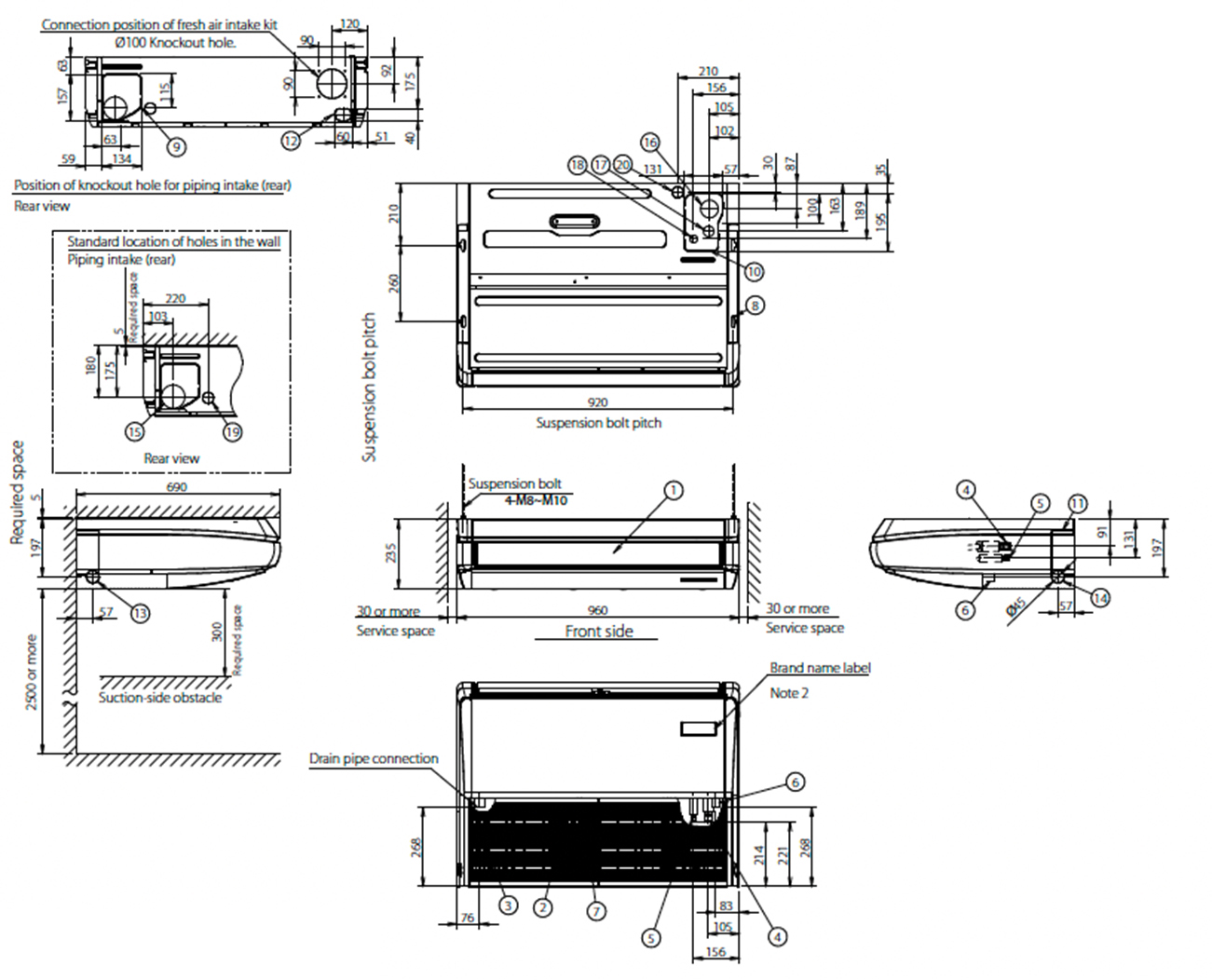
Teknik Çizimler
