Daikin FBA60A9 Gizli Tavan Tipi Küçük Ticari Klima
Ürün Açıklaması
- Soğutma Kapasitesi: 5,70 kW
- Isıtma Kapasitesi: 7,00 kW
- DC inverter fanlar sayesinde azalan güç tüketimi
- Kablolu kumandayla ESP değiştirebilme imkanı, hava debisinin optimizasyonunu sağlar
- 120Pa’a kadar çıkan cihaz dışı statik basınç, farklı uzunluklardaki esnek kanalların kullanılabilmesini sağlar.
- Mağazalar ve ortak büyüklükteki ofisler için idealdir
- Çok sessiz çalışma: 29dBA’ya kadar düşen ses basıncı seviyesi
- DIII bağlantısı için opsiyonel adaptör gerekli değildir, ünitenizi daha geniş bina yönetimi sistemine bağlayın
- Hava emiş yönü, arkadan veya alttan emiş şeklinde değiştirilebilir
- Standart olarak gelen drenaj pompası, drenaj sisteminin güvenilirliğini arttırır
- İç dekora sorunsuz uyum sağlar: sadece emme ve deşarj ızgaraları görünür
- Nominal hava debisine göre otomatik debi ayarı sayesinde kolay montaj
Teknik Özellikler
Verimlilik verileri |
|
FBA + RXM |
35A9 + 35R9 |
50A9 + 50R |
60A9 + 60R |
|
Soğutma kapasitesi Nom. |
|
kW |
3,40 |
5,00 |
5,70 |
|
Isıtma kapasitesi Nom. |
|
kW |
4,00 |
5,50 |
7,00 |
|
Alan soğutma |
Enerji verimliliği sınıfı |
A++ |
A+ |
|||
Kapasite |
Ptasarım |
kW |
3,40 |
5,00 |
5,70 |
|
SEER |
6,23 |
6,27 |
5,91 |
|||
Yıllık enerji tüketimi |
|
kWs/yıl |
191 |
279 |
336 |
|
Alan ısıtma (Ilıman iklim) |
Enerji verimliliği sınıfı |
A+ |
||||
Kapasite |
Ptasarım |
kW |
2,90 |
4,40 |
4,60 |
|
SCOP/A |
4,07 |
4,06 |
4,01 |
|||
Yıllık enerji tüketimi |
|
kWs/yıl |
996 |
1.517 |
1.607 |
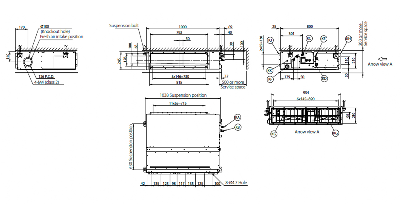
Teknik Çizimler
