Daikin FXDQ63 – Düşük Statik Basınçlı Gizli Tavan Tipi VRV
Ürün Açıklaması
- Soğutma Kapasitesi: 7,10 kW
- Isıtma Kapasitesi: 8,00 kW
Kompakt boyutları sayesinde yalnızca 240mm’lik bir asma tavan boşluğuna kolayca monte edilebilir
44Pa’ya kadar, orta seviyede cihaz dışı statik basınç, farklı uzunluklardaki esnek kanalların kullanılabilmesini sağlar
Duvara dikkat çekmeyecek şekilde monte edilebilir: dışarıdan yalnızca emiş ve deşarj ızgaraları görülebilir
Örneğin otel odaları, küçük ofisler vs. gibi küçük veya iyi yalıtılan odalar için özel olarak geliştirilen 15 sınıfı ünite
Kendi kendini temizleyen filtre seçeneği düzenli filtre temizliği sayesinde maksimum verimlilik, konfor ve güvenirlik sunar
Çoklu bölge kiti bir iç ünitenin birden fazla sayıda, bağımsız olarak kontrol edilen klima bölgesine hizmet vermesine imkan tanır
Hava emme yönü arkadan emme yerine aşağıdan emme şeklinde değiştirilebildiğinden esnek montaj sunar
600mm basınç yüksekliğine sahip standart drenaj pompası esnekliği yükseltirken, montaj süresini kısaltır
Teknik Özellikler
İç ünite |
FXDQ |
15A3 |
20A3 |
25A3 |
32A3 |
40A3 |
50A3 |
63A3 |
|
Soğutma kapasitesi Toplam kapasite Yüksek fan devrinde |
kW |
1,70 |
2,20 |
2,80 |
3,60 |
4,50 |
5,60 |
7,10 |
|
Isıtma kapasitesi |
Toplam kapasite Yüksek fan devrinde |
kW |
1,90 |
2,50 |
3,20 |
4,00 |
5,00 |
6,30 |
8,00 |
Çekilen güç – 50 Hz |
Soğutma Yüksek fan devrinde |
kW |
0,071 |
0,078 |
0,099 |
0,110 |
|||
Isıtma Yüksek fan devrinde |
kW |
0,068 |
0,075 |
0,096 |
0,107 |
||||
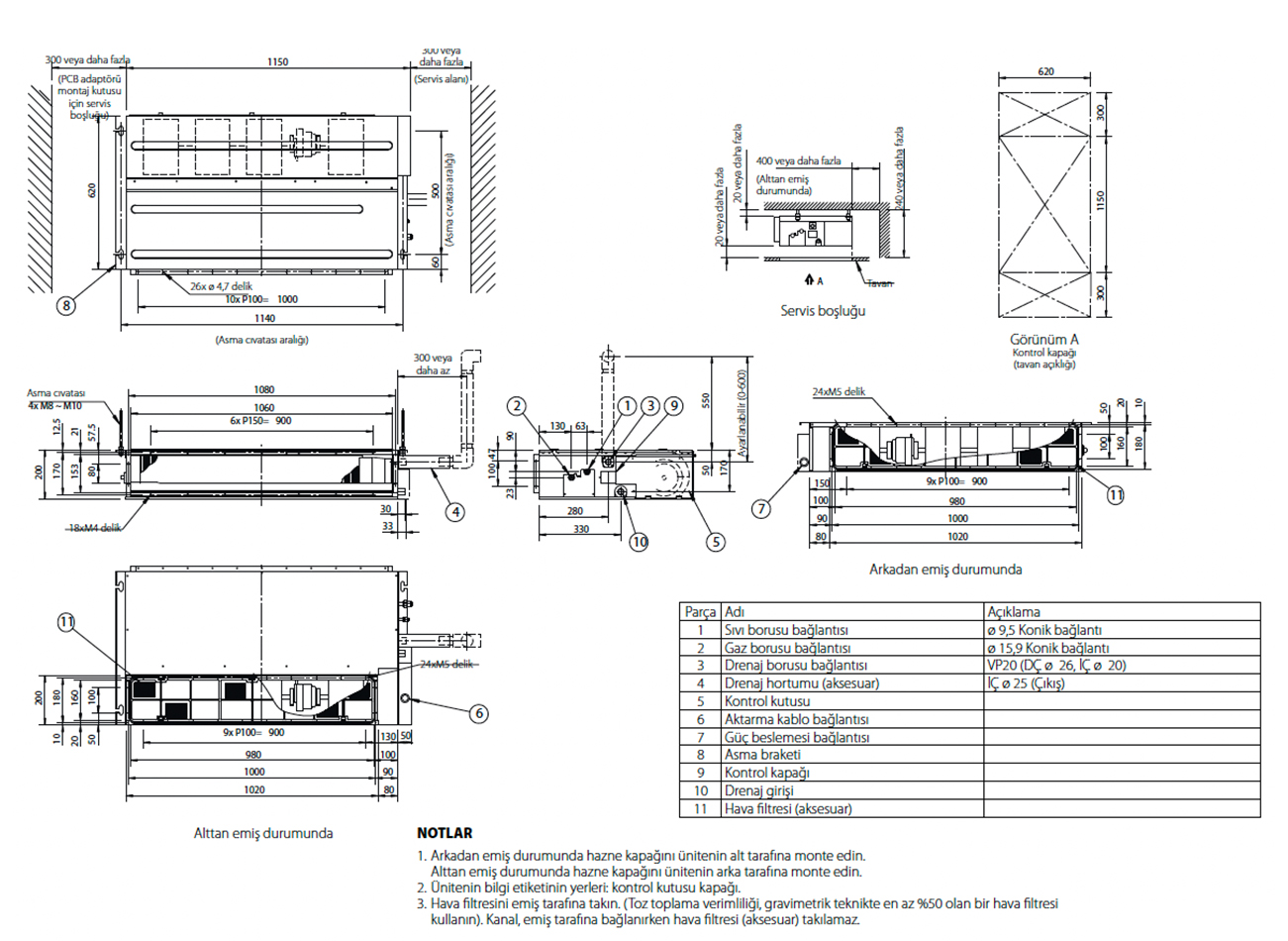
Gerekli tavan boşluğu > |
mm |
240 |
|||||||
Boyutlar |
Birim YükseklikxGenişlikxDerinlik |
mm |
200x750x620 |
200x950x620 |
200×1.150×620 |
||||
Ağırlık |
Birim |
kg |
22,0 |
26,0 |
29,0 |
||||
Gövde |
Malzeme |
|
Galvanize çelik |
||||||
Fan |
Hava akış Soğutma Yüksek fan devrinde m³/dak hızı – 50 / Orta fan devrinde / Hz Düşük fan devrinde |
7,5 / 7,00 / 6,4 |
8,0 / 7,20 / 6,4 |
10,5 / 9,50 / 8,5 |
12,5 / 11,0 / 10,0 |
16,5 / 14,5 / 13,0 |
|||
Cihaz dışı statik Fabrika ayarı / Yüksek basınç – 50 Hz |
Pa |
10 / 30,0 |
15 / 44,0 |
||||||
Hava filtresi |
Tipi |
|
Çıkartılabilir / yıkanabilir |
||||||
Ses gücü seviyesi Soğutma Yüksek fan devrinde |
dBA |
50 |
51 |
52 |
53 |
54 |
|||
Ses basıncı seviyesi Soğutma Yüksek fan devrinde / Orta fan devrinde / Düşük fan devrinde |
dBA |
32,0 / 31,0 / 27,0 |
33,0 / 31,0 / 27,0 |
34,0 / 32,0 / 28,0 |
35,0 / 33,0 / 29,0 |
36,0 / 34,0 / 30,0 |
|||
Soğutucu akışkan Tipi/GWP |
R-410A/2.087,5 |
||||||||
Boru bağlantıları |
Sıvı DÇ |
mm |
6,35 |
9,52 |
|||||
Gaz DÇ |
mm |
12,7 |
15,9 |
||||||
Drenaj |
VP20 (İÇ 20/DÇ 26) |
||||||||
Güç beslemesi |
Faz/Frekans/Gerilim |
Hz/V |
1~/50/60/220-240/220 |
||||||
Akım – 50 Hz |
Maksimum sigorta amperi (MFA) |
A |
16 |
||||||
Kontrol sistemleri |
Uzaktan kumanda |
BRC4C65 / BRC4C66 |
|||||||
Kablolu kumanda |
BRC1H52W/S/K / BRC1E53A / BRC1E53B / BRC1E53C / BRC1D52 |
Teknik Çizimler
