Daikin FXMQ - Yüksek Statik Basınçlı Gizli Tavan Tipi VRV
Daikin FXMQ - Yüksek Statik Basınçlı Gizli Tavan Tipi VRV

Daikin FXMQ100 – Yüksek Statik Basınçlı Gizli Tavan Tipi VRV

    Ürün Açıklaması

    • Soğutma Kapasitesi: 11,2 kW
    • Isıtma Kapasitesi: 12,5 kW

    Kablolu kumandayla ESP değiştirebilme imkanı, hava debisinin optimizasyonunu sağlar
    200Pa'ya kadar yüksek seviyedeki statik basınç, farklı uzunluklardaki kanal ve ızgara ağına imkan tanır
    Duvara dikkat çekmeyecek şekilde monte edilebilir: dışarıdan yalnızca emiş ve deşarj ızgaraları görülebilir
    Aynı sisteme taze hava girişi entegre edilmiş ve böylece ilave bir havalandırma ihtiyacı ortadan kaldırılarak montaj maliyeti düşürülmüştür
    Hava emme yönü arkadan emme yerine aşağıdan emme şeklinde değiştirilebildiğinden esnek montaj sunar
    625mm basınç yüksekliğine sahip standart dahili drenaj pompası esnekliği yükseltirken, montaj süresini kısaltır

    Teknik Özellikler

    İç ünite                                                                     FXMQ/FXMQ        50P7

    63P7

    80P7

    100P7

    125P7

    200MB

    250MB

    Soğutma kapasitesi Toplam kapasite Yüksek fan devrinde                    kW

    5,6

    7,1

    9,0

    11,2

    14,0

    22,4

    28,0

    Isıtma kapasitesi       Toplam kapasite Yüksek fan devrinde                    kW

    6,3

    8,0

    10,0

    12,5

    16,0

    25,0

    31,5

    Çekilen güç – 50 Hz

    Soğutma    Yüksek fan devrinde                    kW

    0,110

    0,120

    0,171

    0,176

    0,241

    0,895

    1,185

    Isıtma        Yüksek fan devrinde                     kW

    0,098

    0,108

    0,159

    0,164

    0,229

    0,895

    1,185

    Gerekli tavan boşluğu >                                                            mm

    350

    Boyutlar                  Birim         YükseklikxGenişlikxDerinlik          mm

    300×1.000×700

    300×1.400×700

    470×1.380×1.100

    Ağırlık                     Birim                                                           kg

    35

    46

    132

    Gövde                     Malzeme

    Galvanizli çelik levha

    Dekoratif panel

    Model

    BYBS71DJW1

    BYBS125DJW1

    Renk

    Beyaz (10Y9/0.5)

    Boyutlar    YükseklikxGenişlikxDerinlik         mm

    55×1.100×500

    55×1.500×500

    -x-x-

    Ağırlık                                                          kg

    4,5

    6,5

    Fan

    Hava akış

    Soğutma Yüksek / Orta / Düşük m³/dak

    18,0 / 16,5 / 15,0

    19,5 / 17,8 / 16,0

    25,0 / 22,5 / 20,0

    32,0 / 27,5 / 23,0

    39,0 / 33,5 / 28,0

    58 / 54,0 / 50

    72 / 67,0 / 62

    hızı – 50 Hz Isıtma        Yüksek / Orta / Düşük m³/dak

    18,0 / 16,5 / 15,0

    19,5 / 17,8 / 16,0

    25,0 / 22,5 / 20,0

    32,0 / 27,5 / 23,0

    39,0 / 33,5 / 28,0

    – / – / –

    Cihaz dışı statik Fabrika ayarı / Yüksek                   Pa

    basınç – 50 Hz

    100 / 200

    160 / 270

    170 / 270

    Hava filtresi             Tipi

    Reçine ağ

    Ses gücü seviyesi       Soğutma     Yüksek / Orta / Düşük                 dBA

    61,0 / – / –

    64,0 / – / –

    67,0 / – / –

    65,0 / – / –

    70,0 / – / –

    76 / 75 / 73

    Ses basıncı seviyesi

    Soğutma   Yüksek / Orta / Düşük                 dBA

    41,0 / 39,0 / 37,0

    42,0 / 40,0 / 38,0

    43,0 / 41,0 / 39,0

    44,0 / 42,0 / 40,0

    48 / – / 45

    Isıtma        Yüksek / Orta / Düşük                 dBA

    41,0 / 39,0 / 37,0

    42,0 / 40,0 / 38,0

    43,0 / 41,0 / 39,0

    44,0 / 42,0 / 40,0

    – / – / –

    Soğutucu akışkan Tipi/GWP

    R-410A/-

    R-410A/2.087,5

    Boru bağlantıları

    Sıvı            DÇ                                            mm

    6,35

    9,52

    Gaz           DÇ                                            mm

    12,7

    15,9

    19,1

    22,2

    Drenaj

    VP25 (İÇ 25/DÇ 32)

    PS1B

    Güç beslemesi          Faz/Frekans/Gerilim                                   Hz/V

    1~/50/60/220-240/220 +/-10%

    1~/50/220-240

    Akım – 50 Hz            Maksimum sigorta amperi (MFA)                      A

    16

    Kontrol sistemleri

    Uzaktan kumanda

    BRC4C65 / BRC4C66

    Kablolu kumanda

    BRC1H52W/S/K / BRC1E53A / BRC1E53B / BRC1E53C / BRC1D52

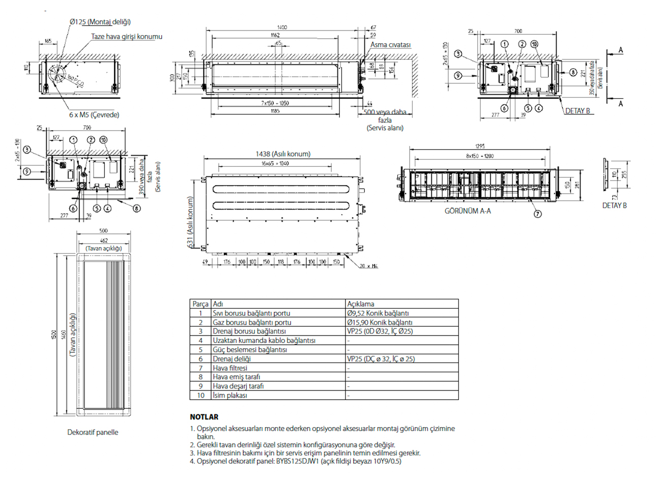
    Teknik Çizimler

    Daikin FXMQ100 – Yüksek Statik Basınçlı Gizli Tavan Tipi VRV

    Daikin FXMQ100 – Yüksek Statik Basınçlı Gizli Tavan Tipi VRV Videoları

    Diğer Daikin Ürünleri
    Daikin Klimalar